011-596-6393
受付時間/10:00~19:00
シャルルー谷口 5
- 地下南北線「平岸」徒歩4分
- 地下東豊線「豊平公園」徒歩16分














設備
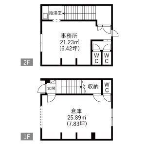
[条件] 外国人契約可能 ・ 事務所利用可能 ・ 保証会社利用必須 [キッチン] 給湯器(プロパンガス) ・ ガスコンロ(1口) ・ システムキッチン [水廻り] トイレ(水洗) ・ バス・トイレ別 [冷暖房] エアコン(冷房のみ) ・ 暖房(灯油) [収納] シューズボックス [放送・通信] UHFアンテナ(地デジ用) ・ ケーブルTV [セキュリティ] インターホン(カメラ付き) [その他] 専用ごみ置場 ・ ガス(プロパンガス) ・ 水道(公営) ・ 排水(公共下水) ・ 照明 ・ 網戸 ・ 日当たり良好

お問い合わせ