011-596-6393
受付時間/10:00~19:00
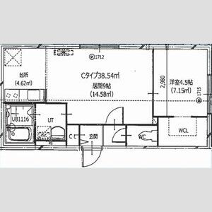
HERO YAMAHANA1 403
- 札幌市電「西線11条」徒歩2分
- 札幌市電「西線14条」徒歩8分




設備
[位置] 角部屋 [条件] 2人入居可能 [キッチン] 給湯器(プロパンガス) ・ ガスコンロ(2口) ・ システムキッチン [水廻り] 風呂 ・ トイレ ・ 洗面台(独立) ・ 浴室乾燥機 ・ 暖房便座 ・ シャワートイレ ・ 洗髪洗面化粧台 ・ バス・トイレ別 ・ 洗濯機置場(室内) [冷暖房] エアコン ・ 暖房(プロパンガス) [収納] ウォークインクローゼット [放送・通信] UHFアンテナ(地デジ用) ・ インターネット対応 ・ ネット使用料不要 [セキュリティ] 宅配BOX ・ インターホン(カメラ付き) [その他] 専用ごみ置場 ・ 自転車置場 ・ ガス(プロパンガス) ・ 水道(公営) ・ 排水(公共下水) ・ 照明 ・ 網戸 ・ デザイナーズ

お問い合わせ