011-596-6393
受付時間/10:00~19:00
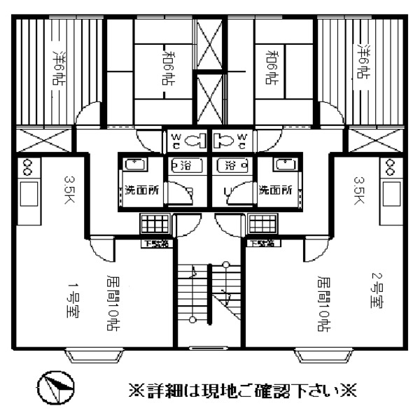
グリーンパーク旭 B棟 102
- 函館線「稲積公園」徒歩9分












設備
[条件] 保証会社利用必須 [キッチン] 給湯器(プロパンガス) [水廻り] 風呂(ユニットバス) ・ トイレ(水洗) ・ 洗面台(独立) ・ シャワートイレ ・ 洗髪洗面化粧台 ・ バス・トイレ別 ・ 洗濯機置場(室内) [冷暖房] 暖房(灯油) [収納] シューズボックス [放送・通信] ケーブルTV [セキュリティ] インターホン(カメラ付き) [その他] 専用ごみ置場 ・ 電気 ・ ガス(プロパンガス) ・ 水道(公営) ・ 排水(公共下水)

お問い合わせ